Проект МОНЕ пользуется спросом среди заказчиков и застройщиков. В связи с этим, он получил дальнейшее развитие в проекте МОНЕ 75.
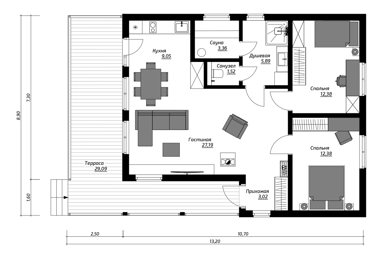
Планировка дома осталась прежней, но изменились размеры помещений. Под двускатной крышей расположены две спальни, кухня-гостиная, зона для отдыха и прихожая. К главному фасаду примыкает терраса без навеса, которая открыта с трёх сторон.
Мы увеличили общую площадь дома до 74,79 м² и расширили зону ванной до 10,77 м², добавив ещё одно окно.
Теперь вы можете превратить обычный санузел в свой личный спа-салон. Здесь есть сауна, отдельный туалет, просторная душевая, где можно установить стиральную машину. Мы также предусмотрели место для ванны.
Представьте: ароматические свечи, спокойная музыка, приглушённый свет. Позвольте себе расслабиться.
