Современный загородный дом в скандинавском стиле общей площадью 116 м² с разноуровневой крышей, большими окнами от пола до потолка и просторной гостиной. В доме есть две спальни и большая крытая терраса.
Скандинавский стиль отличается минимализмом, строгостью форм и линий, использованием натуральных материалов и естественных цветов. В доме есть всё необходимое для комфортной жизни: спальни, ванная комната с сауной, котельная, гостиная, кухня и терраса.
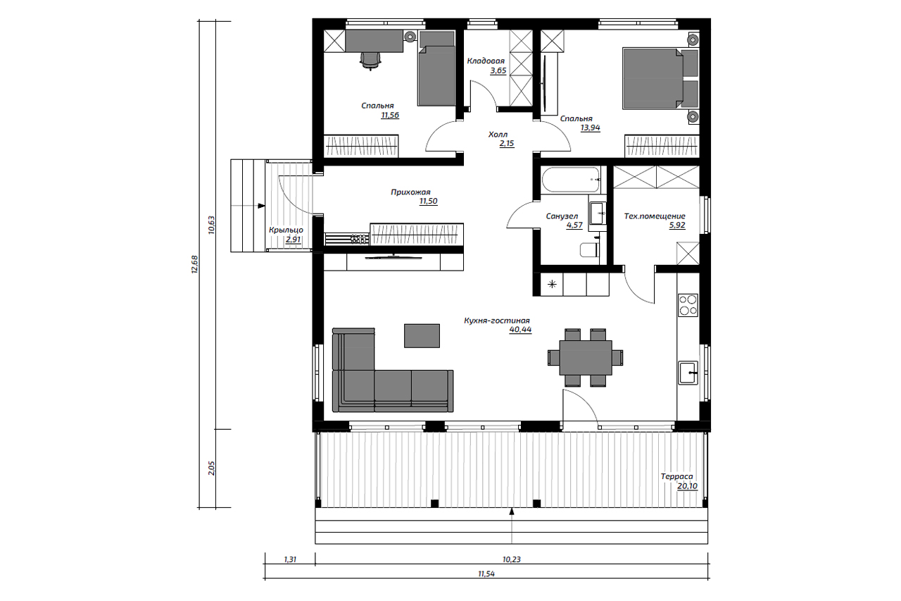
Дом начинается с просторной входной зоны. Слева находится приватная часть дома: спальни, ванная комната с сауной и котельная. Справа — общественная зона, которая состоит из большой светлой гостиной-кухни с двумя выходами на террасу. Высокие потолки добавляют помещению объём. Панорамные окна наполняют гостиную светом, а окружающая природа становится частью интерьера.
В кухонной зоне достаточно места для кухонного острова, а рабочую поверхность можно расположить под окном. Открытая с трёх сторон терраса с навесом удваивает площадь гостиной. Здесь есть место для обеденной и диванной группы. В тёплое время года на террасе можно проводить всё время: играть с детьми, принимать гостей, встречать и провожать солнце, вести неспешные беседы и наслаждаться соловьиными трелями.
